Leave a Message

Thank you for your message. We will be in touch with you shortly.

1517 SW 7th Avenue

$390,000
1517 SW 7th Avenue, Okeechobee, Okeechobee, FL 34974
1517 SW 7th Avenue

1517 SW 7th Avenue

$390,000

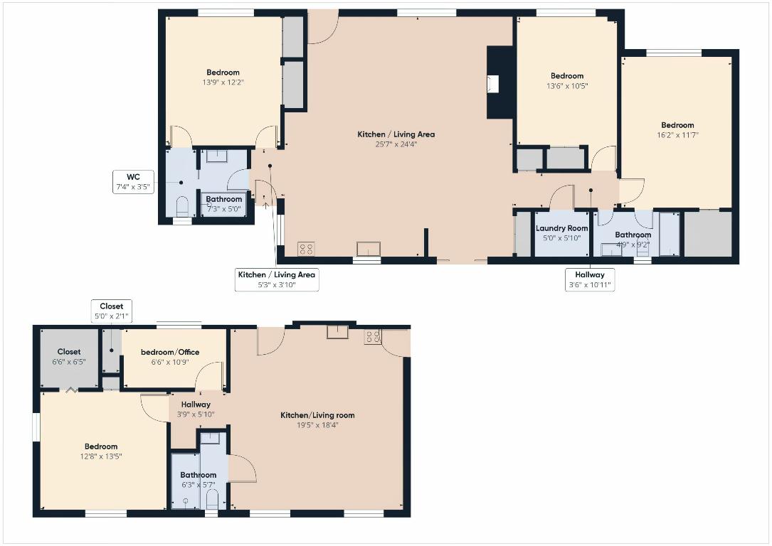
Discover this charming property at 1517 SW 5th Ave in Okeechobee, offering both a spacious main house and a versatile guest house. The main home features vaulted ceilings with exposed beams, creating an inviting and airy atmosphere. It includes 3 bedrooms, 2 bathrooms, and plenty of character.

The guest house provides a large 1-bedroom layout, a bonus office or small guest room, and a handicap-accessible bathroom, perfect for extended family or rental opportunities.

Enjoy outdoor living in the fenced backyard with an open patio, ideal for relaxing or entertaining. The property boasts metal and hurricane windows and shutters for added security and durability. The carport canvas will be replaced before closing for the buyer's convenience.
Ethan Hales
Ethan Hales Contact

Features & Amenities

Interior

Total Bedrooms 5
Total Bathrooms 3
Full Bathrooms 3
Laundry Room Washer Hookup, Inside, Laundry Closet
Flooring Carpet, Ceramic Tile
Appliances Dishwasher, Electric Range, Microwave, Refrigerator
Other Interior Features Kitchen/Dining Combo, Main Level Primary, Separate Shower, Bar

Exterior

Stories 1
Water Source Public
Utilities Water Available
ROOF Metal
Lot Features 1/4 to 1/2 Acre Lot
Parking Detached Carport
Heat type Central
Air Conditioning Central Air, Ceiling Fan(s)
Sewer Septic Tank
Disability Features Accessibility Features, Customized Wheelchair Accessible
HOA Amenities None
Other Exterior Features Outdoor Living Area

Area & Lot

Status For Sale
LIVING SPACE 2,184 Sq.Ft.
TOTAL AREA 2,779 Sq.Ft.
MLS® ID R11054825
Type Residential
Year Built 1987
Neighborhood Okeechobee County
Architecture Styles Ranch
Water Frontage None
View Description Other

Financial

SALES PRICE $390,000
REAL ESTATE TAXES $2,315/yr
Zoning City

Home features vaulted ceilings with exposed beams, creating an inviting and airy atmosphere.

Red Gator Real Estate

View Virtual Tour
image

Schedule a Showing

We would love to show you our beautiful property. Please select your preferred date and time below. An agent will be in touch shortly to confirm your appointment.

Schedule a Showing

We would love to show you our beautiful property. Please select your preferred date and time below. An agent will be in touch shortly to confirm your appointment.

Thank you for your interest in 1517 SW 7th Avenue, Okeechobee, Okeechobee, FL 34974. We are reviewing your request and will be in touch shortly!

Mortgage Calculator

Estimate your monthly mortgage payment, including the principal and interest, property taxes, and HOA. Adjust the values to generate a more accurate rate.

All estimates are provided for informational purposes only. Actual amounts may vary.
$0,000 Your Payment 20 15 65
$0,000 Your Payment
Okeechobee County

Okeechobee County

Read more

Let’s Talk About Your Real Estate Goals

Whether you’re ready to buy, sell, or just have questions, our team is here to help you every step of the way. Reach out today and let’s make your next move a success.

CONTACT US